Agencia de Noticias UPB - Medellín. La Bienal Colombiana de Estudiantes de Arquitectura es un evento cultural y académico organizado por la Sociedad Colombiana de Arquitectos que tiene como propósito seleccionar los trabajos de grado más significativos realizados por estudiantes y recién egresados de las facultades de arquitectura de universidades colombianas.
Ana María Mejía Arango y Mariana Toro Castro obtuvieron el segundo y tercer lugar (respectivamente) en las categorías Proyecto Arquitectónico y Ordenamiento Urbano y Regional.
Por su parte, Ana María considera muy valiosa la forma en como la arquitectura puede mejorar la calidad de vida de las personas, puesto que desde su saber específico transforma el espacio contribuyendo al desarrollo humano como es el caso de su proyecto enfocado en vivienda social: Rehabitar el patrimonio como una estrategia replicable para redensificar los centros urbanos.
Ambas iniciativas fueron galardonadas bajo el criterio de máxima calidad y excelencia, a pesar de que la primera evaluaba los planes y propuestas de ordenamiento y desarrollo territorial a escala nacional, regional, urbana o zonal, y la segunda los proyectos arquitectónicos que planteen aportes innovadores desde el punto de vista estético, ambiental, tecnológico y social.
La egresada de la Facultad de Arquitectura Mariana estudió los asentamientos informales del municipio de La Estrella, luego hacer un mapeo de las condiciones del barrio llamado Campo-Alegre (ubicado en la antigua vía a Caldas) pudo dar cuenta de sus carencias tanto en infraestructura como en topografía, debido a que sus características elevadas condicionan el flujo de la movilidad. Además, pudo percibir que existen viviendas en riesgo al estar ubicadas sobre quebradas o zonas de inundación en donde no se debería construir.
Después de llevar a cabo la etapa de documentación en la cual visitó el territorio, realizó encuestas, tomó fotografías del sector, investigó los planos y principalmente el Plan de Ordenamiento Territorial (POT) del municipio, ella logró diagnosticar las problemáticas y oportunidades del barrio en cuestión.
A partir del anterior análisis presentó su tesis de grado como una solución de diseño desde un plan macro; interviniendo la movilidad, la quebrada mediante el paisajismo y recuperando esa zona húmeda y edificio público como un equipamiento educativo de vivienda.

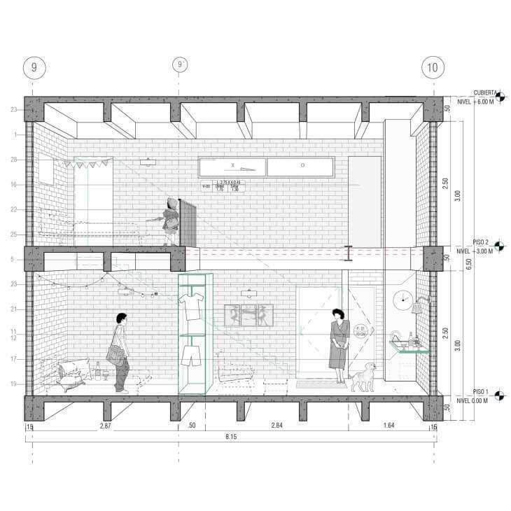
El edificio donde ella desarrolló la idea fue el Miguel de Aguinaga, cercano al museo de Antioquia, y allí pretendía aplicar la propuesta de una vivienda social que creciera en el tiempo, es decir, que se les entregara a los usuarios un área de 50 metros y ellos mismos pudieran hacerla crecer hasta 100 metros. Adicionalmente, el prototipo podría ser aplicado tanto en edificios existentes como en lotes nuevos.
Estas dos egresadas de la Facultad de Arquitectura de la UPB coinciden en que la Universidad las apoyó para ir a Cartagena y fue una experiencia muy satisfactoria, de igual forma a ellas les gustaría empezar a especializarse en los campos donde desarrollaron los proyectos pues significa una oportunidad de crecer profesionalmente y adquirir más conocimiento.
Uno de los grandes desafíos de participar en esta Bienal fue abarcar todas las temáticas de un proyecto de tal envergadura, el cual posee un componente social, económico y una factibilidad financiera para establecer el presupuesto de la obra. No obstante, elaborar una propuesta multidisciplinaria con implicaciones ambientales, ingenieriles y de diseño fue un gran reto para aprender de sí mismas.
Finalmente, Toro Castro concluye que fue coyuntural visitar estos territorios y evidenciar todas las carencias que experimentan sus habitantes porque es un llamado a la acción para que desde la profesión se transformen varios elementos que facilitan la vida de las personas. En ese orden de ideas, Mejía Arango explica que la arquitectura siempre debe estar al servicio de los demás y el patrimonio de la ciudad se debe valorar mucho más para darle un mejor uso.
Por Michelle Acevedo Vélez - Agencia de Noticias UPB
Resolución 020198 del 31 de octubre de 2024 por un periodo de 8 años
Universidad sujeta a inspección y vigilancia por el Ministerio de Educación Nacional.
Otorgado por el Ministerio de Educación Nacional. Nit UPB: 890.902.922-6. Todos los derechos reservados